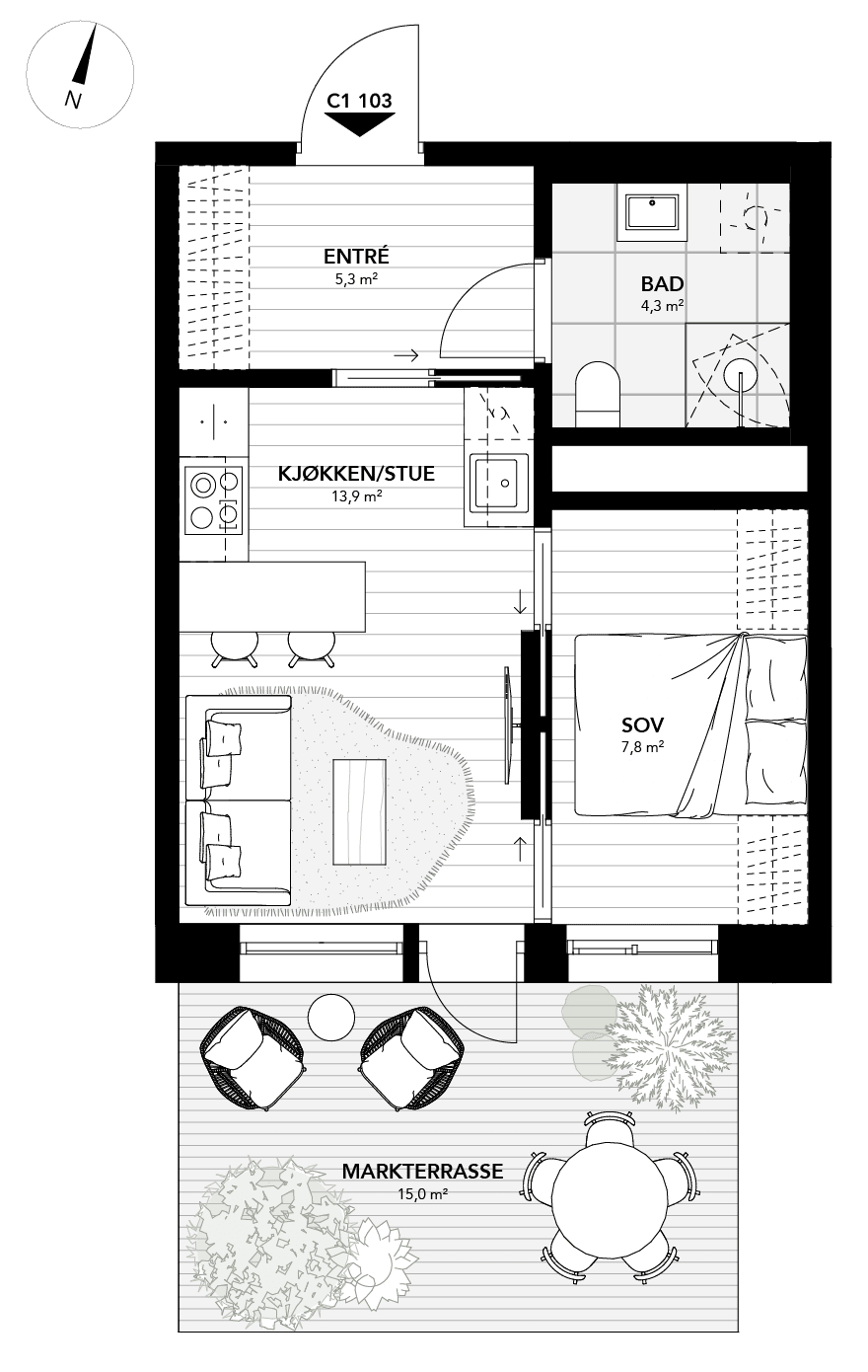
C1-103
Effektiv 2-roms leilighet med god planløsning og en innbydende entré med plass til garderobe. Leiligheten får en åpen stue- og kjøkkenløsning. Barløsning med sitteplasser på kjøkken. Leiligheten får takhøyde på hele 3,8 meter. Fra stuen er det utgang til stor markterrasse hvor du kan nyte fine sommerdager. Soverommet har god plass til dobbeltseng og garderobe. Leiligheten får et delikat flislagt bad med wc, servant, dusjhjørne og opplegg for vaskemaskin.
Bygg
C1-103
Antall rom
2
Etasje
1
BRA
37,5
BRA-i
35
BRA-e
2,5
TBA
15
