C1-505
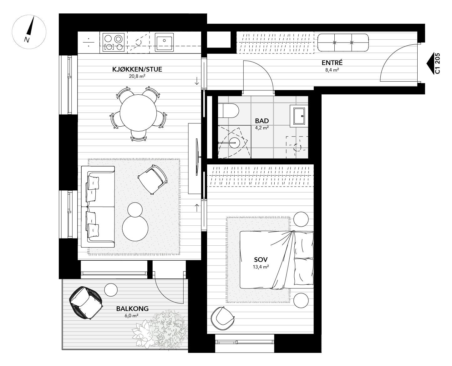
Effektiv 2-roms leilighet med god planløsning og en innbydende entré med god plass til garderobe. Leiligheten får en åpen stue- og kjøkkenløsning. Barløsning med sitteplasser i tilknytning til kjøkken. Fra stuen er det utgang til sydvendt balkong hvor du kan nyte morgenkaffen eller fine sommerdager. Soverommet er romslig og har god plass til dobbeltseng og garderobe. Leiligheten får et delikat flislagt bad med wc, servant, dusjhjørne og opplegg for vaskemaskin.
Bygg
C1-505
Antall rom
2
Etasje
5
BRA
54
BRA-i
49
BRA-e
5
TBA
6
