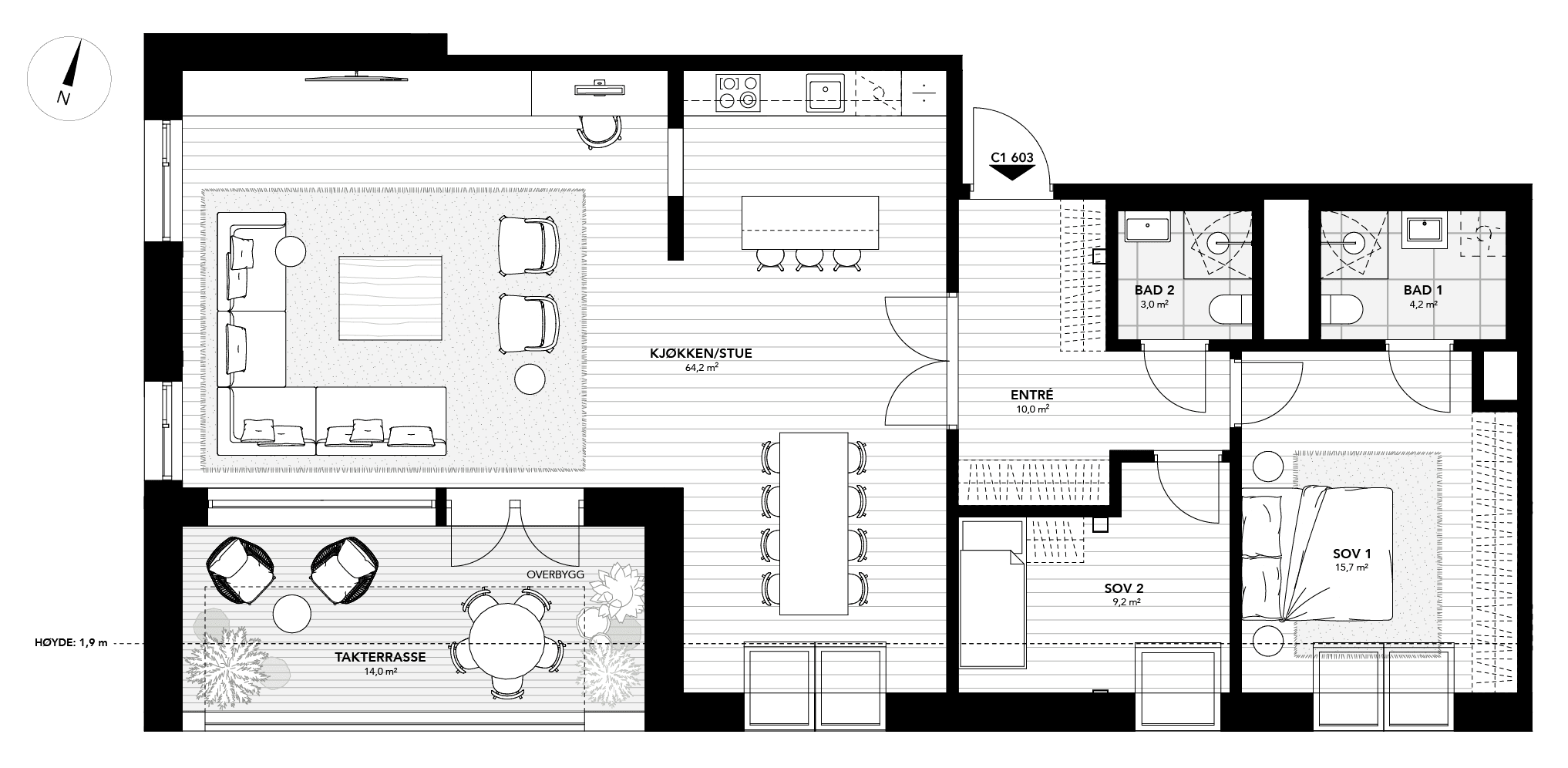
C1-603
Stor og attraktiv 3-roms hjørneleilighet med god planløsning. Leiligheten har entré med god plass til garderobe. Lys og stor stue med åpen løsning og lekkert kjøkken. Kjøkkenøy med barløsning og sitteplasser. Gode møbleringsmuligheter med egen sofa- og TV avdeling. Utgang fra stuen til stor sydvendt takterrasse, delvis overbygget. Leiligheten har to komfortable soverom, med god plass til dobbeltseng og garderobe på hovedsoverommet. To delikate flislagte bad med wc, servant og dusjhjørne. Det største badet får opplegg for vaskemaskin. Hovedsoverom med direkte adkomst til eget bad.
Bygg
Rode
Antall rom
3
Etasje
6
BRA
5
BRA-i
113
BRA-e
5
TBA
14
Stipulerte felleskost. pr. mnd.
7 006
Pris
15 990 000
