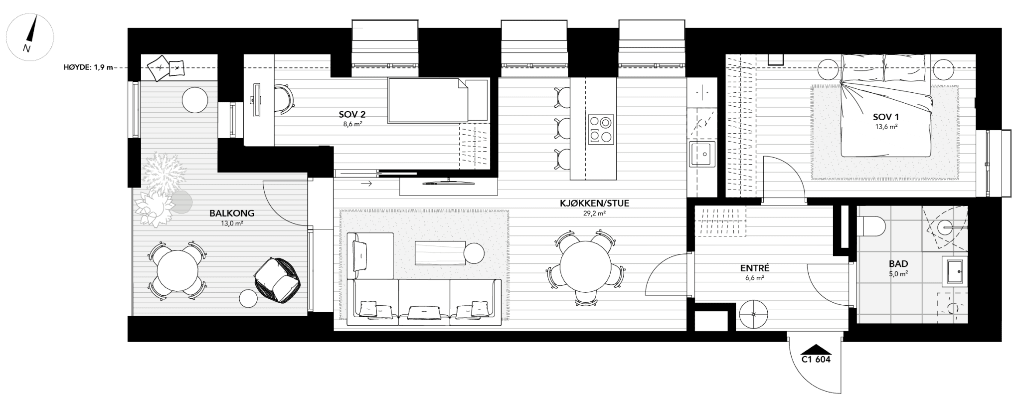
C1-604
Attraktiv 3-roms hjørneleilighet med god planløsning. Leiligheten har en innbydende entré med plass til garderobe. Åpen stue- og kjøkkenløsning med fine møbleringsmuligheter. Kjøkkenøy med integert koketopp og egen barløsning med sitteplasser. Fra stuen har du utgang til romslig vestvendt balkong. To innbydende soverom, med god plass til dobbeltseng og garderobe på hovedsoverommet. Delikat flislagt bad med wc, servant, dusjhjørne og opplegg for vaskemaskin.
Bygg
C1-604
Antall rom
3
Etasje
6
BRA
72
BRA-i
67
BRA-e
5
TBA
13
