C6-306
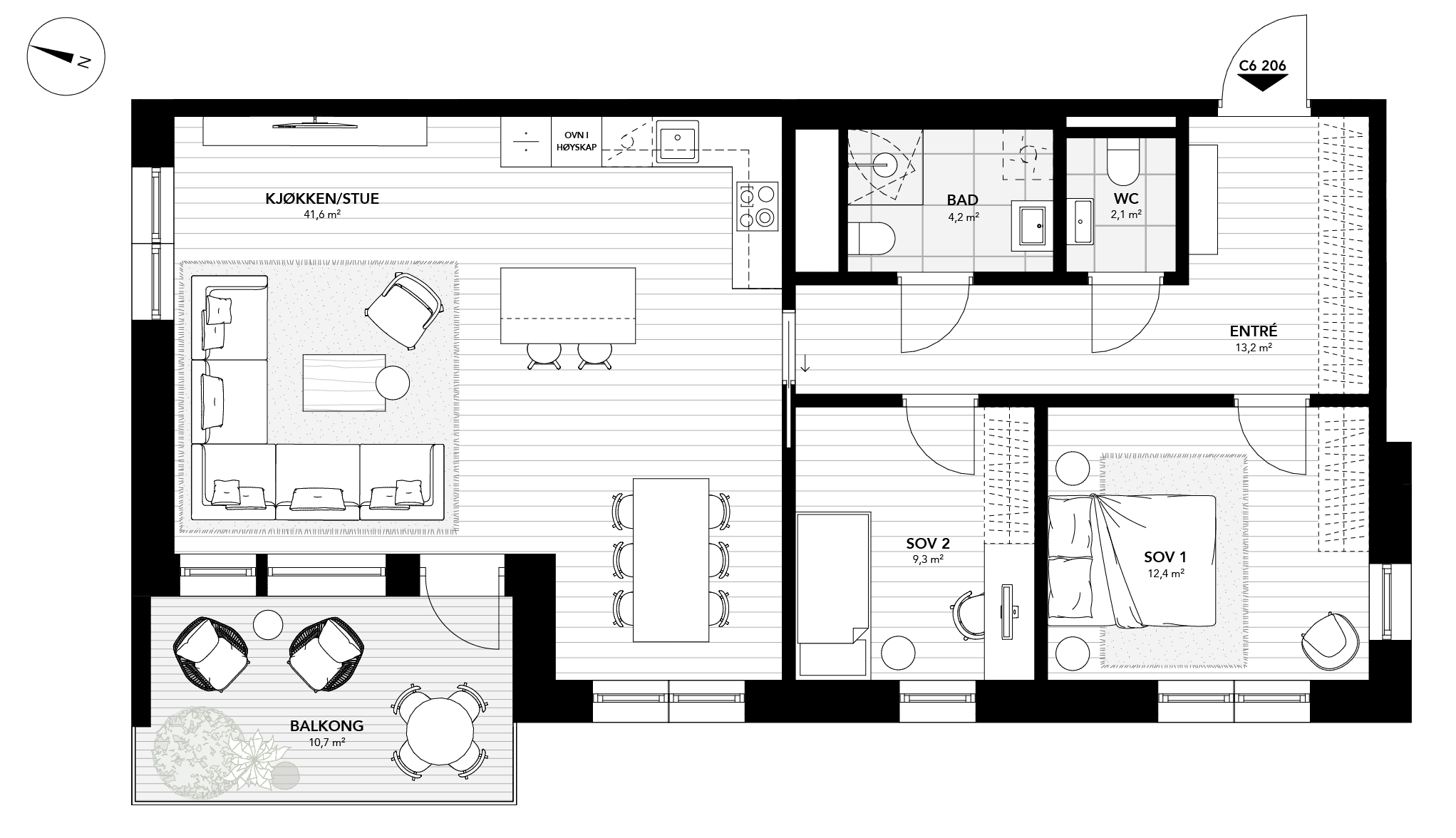
Lekker 3-roms hjørneleilighet med vestvendt balkong og god planløsning. Leiligheten har entré med plass til garderobe. Åpen stue- og kjøkkenløsning med god plass til både sofahjørne og spisebord. Leiligheten har to komfortable soverom, med plass til dobbeltseng og garderobe på hovedsoverommet. Delikat flislagt bad med dusjhjørnet, toalett, servant og opplegg for vaskemaskin samt separat toalett.
Bygg
C6-306
Antall rom
3
Etasje
3
BRA
5
BRA-i
88
BRA-e
5
TBA
10
Stipulerte felleskost. pr. mnd.
5 104
Pris
10 990 000
