C6-403
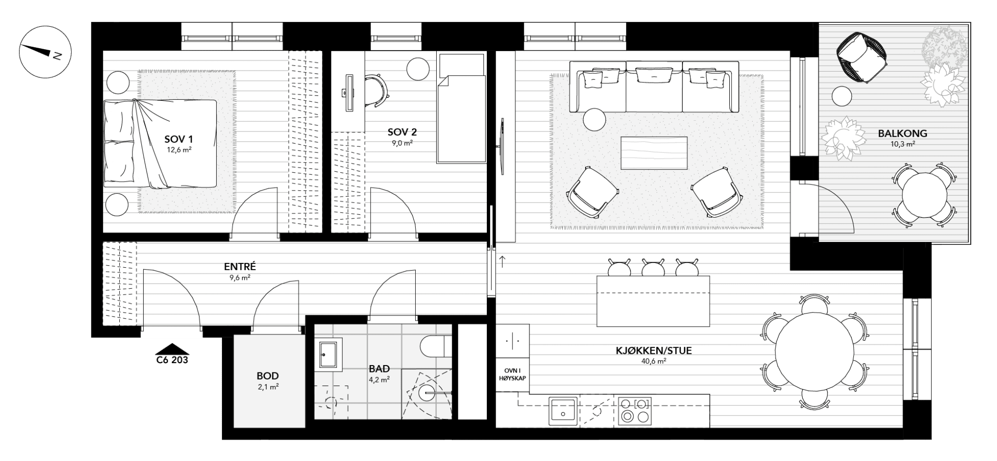
Lekker 3-roms hjørneleilighet med balkong og praktisk planløsning. Leiligheten har entré med plass til garderobe. Åpen stue- og kjøkkenløsning med god plass til både sofahjørne og spisebord. Leiligheten har to komfortable soverom, med plass til dobbeltseng og garderobe på hovedsoverommet. Delikat flislagt bad med dusjhjørnet, toalett, servant og opplegg for vaskemaskin. Leiligheten har også en praktisk innvendig bod.
Bygg
C6-403
Antall rom
3
Etasje
4
BRA
5
BRA-i
83
BRA-e
5
TBA
10
Stipulerte felleskost. pr. mnd.
4 814
Pris
10 990 000
