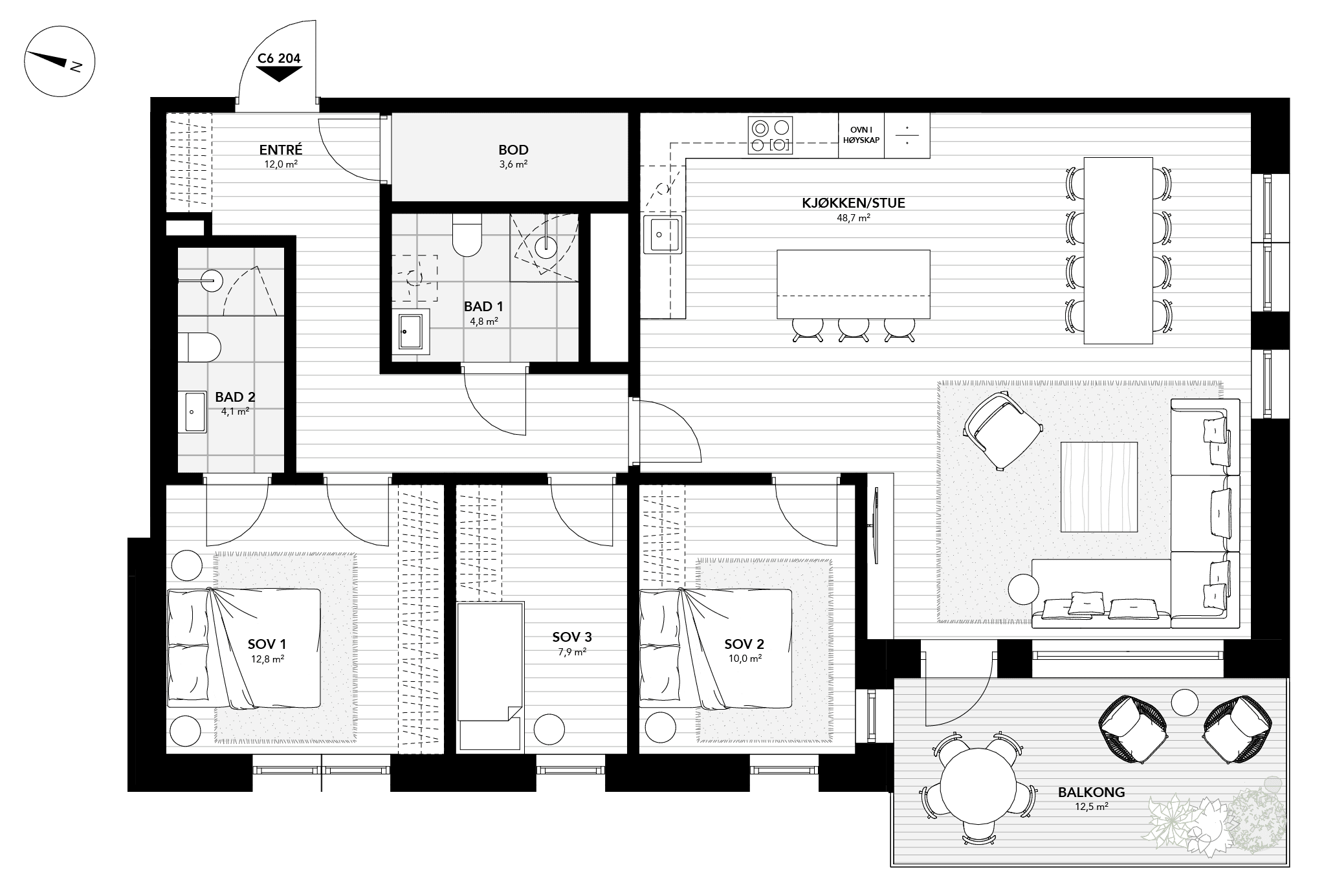
C6-404
Stor 4-roms hjørneleilighet med vestvendt balkong. Entré med avsatt plass til garderobe. Romslig og luftig stue med god plass til sofahjørne og TV, samt spisestue i kombinasjon med åpen kjøkkenløsning. Leiligheten har tre soverom, med plass til dobbeltseng på hovedsoverommet. Plass til garderobe på alle soverom. Leiligheten har to delikate bad, med dusjhjørnet, toalett og servant, samt opplegg for vaskemaskin på det største badet. Hovedsoverom har direkte tilgang til eget bad. Leiligheten har i tillegg en praktisk innvendig bod.
Bygg
C6-404
Antall rom
4
Etasje
4
BRA
5
BRA-i
111
BRA-e
5
TBA
12
Stipulerte felleskost. pr. mnd.
6 438
Pris
14 490 000
