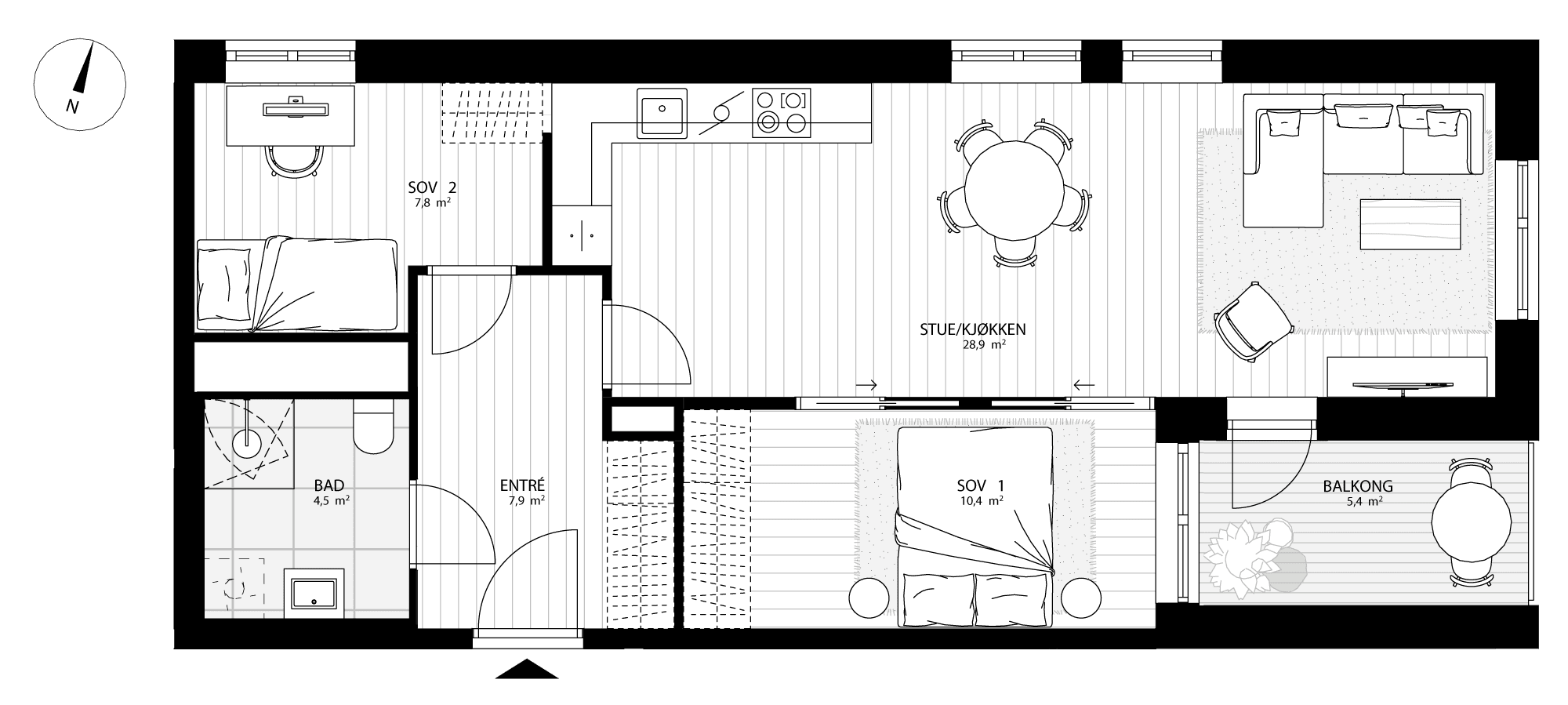
B1-301
Romslig og innbydende 2-roms leilighet med åpen stue- og kjøkken med øy. Leiligheten får en lys og luftig atmosfære. Fra stuen har du utgang til en fin uteplass. Et komfortabelt og romslig soverom. Bad med delikate fliser med wc, servant, dusjhjørne og opplegg for vaskemaskin. Leilighet B1 501 får takhøyde på 2,9 meter.
Bygg
B1-301
Antall rom
3
Etasje
3
BRA
68
BRA-i
63
BRA-e
5
TBA
5,4
Stipulerte felleskost. pr. mnd.
4 032
Pris
6 790 000