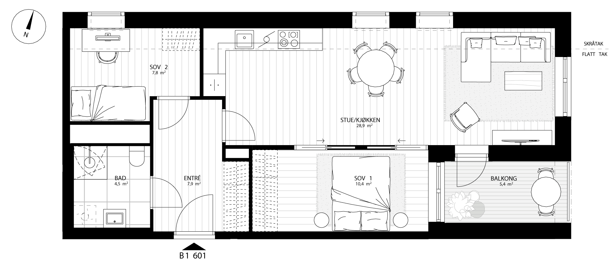
B1-601
Romslig og innbydende 2-roms leilighet med åpen stue- og kjøkken med øy. Leilighten får takhøyde på 2,9 meter og skråtak. Fra stuen har du utgang til en fin markterrasse med plass til spsiebord og sittegruppe. Et komfortabelt og romslig soverom. Bad med delikate fliser med wc, servant, dusjhjørne og opplegg for vaskemaskin.
Bygg
B1-601
Antall rom
3
Etasje
6
BRA
68
BRA-i
63
BRA-e
5
TBA
5,4
Stipulerte felleskost. pr. mnd.
4 032
Pris
7 090 000